昭和8年創業!歴史ある武蔵屋の厨房設備工事
武蔵屋製作所は昭和8年創業以来、数多くの厨房設備工事を手掛けてきた老舗企業です。 90年以上にわたり、飲食店・食品工場・市場施設など、あらゆる業種の厨房設備を施工してまいりました。
当社には キャリア30年以上の経験豊富なスタッフ が複数名在籍し、お客様のニーズに最適な設備機器をご提案。厨房設備はメーカーや仕様が多岐にわたるため、長年の経験を活かし、お客様の使用環境に合った最適な厨房設計・施工 を行います。
導線設計を重視し、使いやすさを追求した厨房設備工事を提供いたします。


武蔵屋の厨房設備工事の特徴とは?
武蔵屋の厨房設備工事は、効率的な導線設計を考慮した施工 が特徴です。さらに、自社工場・ショールームを完備 しており、お客様のこだわりや現場に合わせたオーダーメイド製作が可能です。
◆オーダーメイドで対応可能な厨房機器の一例
・冷蔵機器 :冷蔵庫・ネタケース・対面ショーケース
・熱機器 :ガステーブル・中華レンジ・ホットショーケース
・作業機器 :シンク・作業台・フード
実際に機器をショールームで見て触って選べるため、納得のいく厨房工事 を実現できます。
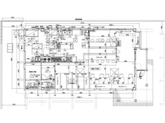
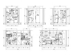
◆CAD図面で分かりやすい提案
厨房の設計段階では、平面図・立面図・立体図を作成し、視覚的に分かりやすいご提案 を行います。
◆搬入・据付・微調整まで徹底対応
武蔵屋では、厨房機器の 搬入・据付工事をメーカー任せにせず、自社便で細心の注意を払い施工 いたします。設置後も より使いやすくするための微調整 を実施し、快適な厨房環境を提供します。
◆メンテナンス対応で長く使える厨房設備
厨房で最も重要なのは、納品後のメンテナンス です。武蔵屋は 自社メンテナンス体制 を整え、長期間安心してご使用いただける環境をサポートします。


東京・千葉・埼玉・神奈川の飲食店の厨房設備工事なら、歴史と実績のある武蔵屋製作所にお任せください!
厨房設備工事の流れ
ご依頼から施工までの流れの一例を紹介します。
| ①お問合せ | 年中無休なので平日は都合の悪いお客様もお問合せが出来ます。直接ショールームに来て頂いても構いません。 |
|---|---|
| ②打合せ | ショールームで実際の機器を確認して決める事が出来ます。お客様のご要望、業態、規模等々の確認をいたします。 |
| ③現地確認 | 実寸を測り給排水、ガス、電気等の設備を確認いたします。 |
| ④設計 | 上記確認事項を元に各業態の導線を考え設計いたします。CAD図面を使い、お客様にも分かりやすく平面図・立面図・立体図を作成いたします。 |
| ⑤お見積り | 設計と同時に迅速にお見積りをいたします。 |
| ⑥再打合せ | 第1段階の図面と見積りを元に、お客様が納得の行くまで図面と見積りを手直しいたします。 |
| ⑦各許可申請確認 | お客様のご要望がございましたら保健所、消防署の申請業務を行います。 |
| ⑧契約 | 決定した図面と見積書をご確認して頂き、契約になります。 |
| ⑨発注・製作 | 確実に納期が守れるように、各部門の発注業務ならびに製作を行います。 |
| ⑩施工確認 | 搬入前に、実寸・各設備状況を確認いたします。 |
| ⑪搬入据付 | 自社便で細心の注意を払い搬入ならびに取付工事を行います。 |
| ⑫引渡し | 図面通りに設置されているかを確認して頂きます。試運転、取扱い説明をいたしまして、完了になります。 |
| ⑬保守・管理 | 安心して少しでも長く使用して頂けるように、自社メンテナンスを行ってまいります。 |
※現場状況等々で流れは変わります。
施工事例
施工事例は武蔵屋の日々[ブログ]でも紹介しております。

03-3841-6348





















































